Villa a schiera in vendita

Sant'Angelo Romano, via Prima Della Palude - Ponte Delle Tavole
€ 239.000
Prezzo aggiornato
3 locali 3 locali
160 Mq 160 Mq
3 bagni 3 bagni

Villa a schiera in vendita

Sant'Angelo Romano, via Prima Della Palude - Ponte Delle Tavole

Descrizione annuncio

Non è solo una casa, è il luogo dove ogni giorno prende forma tra luce e silenzio, il piacere autentico di sentirsi finalmente a casa.

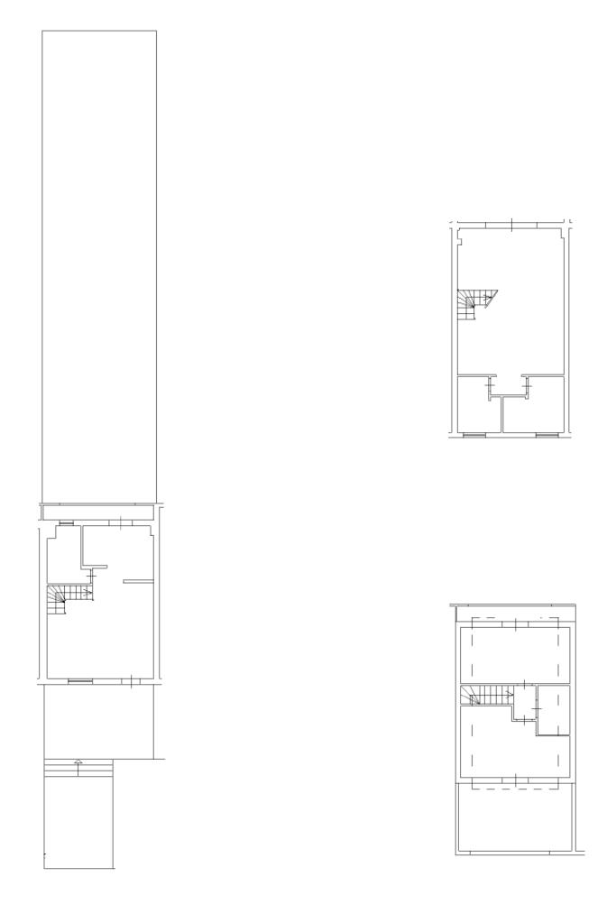
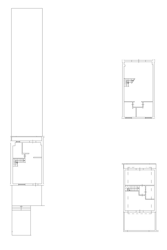
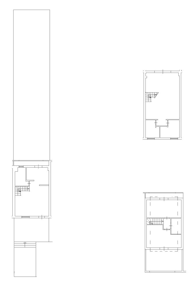
Immagina di rientrare dopo una giornata di lavoro e trovare ad accoglierti un grazioso giardino privato mattonato, dove puoi comodamente parcheggiare la tua auto e goderti fin da subito una piacevole sensazione di indipendenza. Il portico ti accompagna verso l’ingresso, anticipando il calore e l’armonia degli ambienti interni. Questo villino a schiera, porzione centrale, si presenta in ottimo stato ed è pronto ad accogliere una nuova famiglia che desidera spazi ben distribuiti e vivibili ogni giorno.

Al piano terra si apre un salone luminoso e accogliente, perfetto per momenti di relax o per ricevere amici, affiancato da uno studio ideale per lavorare da casa o creare uno spazio personale, oltre a un bagno comodo e funzionale. Salendo al piano superiore si entra nella zona notte, pensata per garantire comfort e privacy: una camera con balcone per iniziare la giornata con una boccata d’aria fresca, un’altra con terrazzo privato dove ritagliarsi un angolo di tranquillità, e un bagno a servizio del piano che completa l’ambiente con praticità ed eleganza.

Il valore aggiunto di questa proprietà si scopre al piano S1, dove una grande sala conviviale e una cucina diventano il cuore pulsante della casa, il luogo perfetto per cene in compagnia, feste di famiglia o semplicemente per vivere appieno ogni momento. Da qui si accede a un secondo giardino, in parte mattonato e in gran parte verde, uno spazio prezioso da vivere nella bella stagione, tra pranzi all’aperto, area giochi o momenti di puro relax.

Una soluzione che unisce comfort, funzionalità e spazi esterni privati, capace di offrire quella sensazione di casa che si percepisce appena varcata la soglia. Questa soluzione non aspetta altro che la sua nuova famiglia, non perdere questa fantastica proposta immobiliare.

SE VOLETE CAMBIARE IL MONDO POSSIAMO PROVARCI INSIEME, SE VOLETE CAMBIARE CASA CI PENSIAMO NOI…BENVENUTA CASA!

Mostra tutto

Nelle vicinanze

Ricariche auto elettriche Ricariche auto elettriche
Fontenuova Via Lago di Como | EnelX
1,9 Km
Scuole Scuole
Istituto comprensivo statale Luigi Pirandello
2,7 Km
Farmacia Farmacia
Farmacia
1,7 Km
Supermercati Supermercati
Todis
560 m
Centro commerciale La Fonte
730 m
Conad
800 m
Negozi Negozi
EuroSpin
1,0 Km
Acqua e sapone
1,1 Km
IperCarni
1,1 Km
Mostra tutto

Caratteristiche

Rif.:
61184386
Piano:
Su più livelli di 3
Totale piani:
3
Posti auto:
1
Balconi:
2
Terrazzi:
1
Mostra tutto
Prezzo Prezzo
€ 239.000
Rata mutuo Rata mutuo
€ 1.135 / mese
Spese annue Spese annue
€ 300
Proponi il tuo prezzoProponi il tuo prezzo

Classe Energetica

F
F
F
F
F
F
F
F
F
EP invernale del fabbricato:
EP estiva del fabbricato:
Anno di costruzione:
2002
Riscaldamento:
Autonomo
Tipo impianto:
A radiatori
Tipo alimentazione:
Metano

Prezzo ridotto di €1 (5%%)

Ti interessa visionare l'immobile?

Fissa un appuntamento  Fissa un appuntamento

Richiedi informazioni

Clicca su Leggi per aprire l'informativa
* Questi campi sono obbligatori

Calcola il tuo mutuo

Semplice e senza impegno
Anticipo

( % )
Mutuo

( % )

pochi semplici passi

inserisci i tuoi dati
Questionario completato
Grazie per aver richiesto un appuntamento senza impegno con un nostro Consulente del Credito e Assicurativo.

Hai inserito correttamente tutti i dati necessari e a breve riceverai una e-mail con un link da convalidare per inviare i tuoi dati.
Affiliato
Immobiliare Santa Lucia Srl
Via Palombarese, 268 00013 Fonte Nuova (RM)

Il nostro staff


  • Anthony Garofalo
    Responsabile

  • Manolo Mastrandrea
    Affiliato

  • Micaela Pierantozzi
    Coordinatrice
Via Palombarese, 268 00013 Fonte Nuova (RM)
Zona: Santa Lucia-Pichini-Ponte Delle Tavole
Mostra su mappa
Orari: Dal Lunedì al Venerdì, 08.30 - 13.00, 15.30 - 20.00 / Sabato 08.30 - 13.00, 15.30 - 19.00
Affiliato
Immobiliare Santa Lucia Srl
Via Palombarese, 268 00013 Fonte Nuova (RM)

2026 Tecnocasa Franchising S.p.A. - P. IVA 08365160152 - Via Monte Bianco 60/A 20089 Rozzano (MI). Ogni agenzia ha un proprio titolare ed è autonoma. Privacy policy | Policy utilizzo | Cookie policy