Porzione di trifamiliare in vendita

Fonte Nuova, Via Marche - Santa Lucia
€ 319.000
5 locali 5 locali
170 Mq 170 Mq
3 bagni 3 bagni

Porzione di trifamiliare in vendita

Fonte Nuova, Via Marche - Santa Lucia

Descrizione annuncio

Se quello che state cercando è la vicinanza a scuole e servizi, nessun lavoro interno da dover affrontare ed indipendenza,allora potete smettete di cercare!! La soluzione che abbiamo il piacere di proporvi racchiude tutte queste caratteristiche e non solo…

Capotesta angolare divisibile!

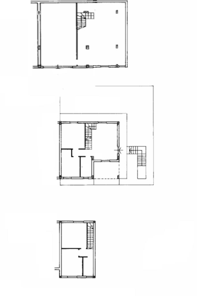
L’ingresso introduce a un piano S1 parzialmente fuori terra, sorprendentemente luminoso e finemente ristrutturato: un ampio salone doppio accoglie con la sua atmosfera calda e conviviale, impreziosito da una moderna penisola con angolo bar, perfetta per momenti di condivisione. Completano il livello un bagno raffinato e una prima camera, ideale come suite per gli ospiti o spazio polifunzionale.

Salendo al piano terra, il cuore della villa si apre in un elegante salone con uscita sul giardino principale, un perfetto equilibrio tra verde e area mattonata, pensato per vivere l’esterno in ogni stagione. Un’ulteriore uscita conduce alla veranda, da cui si gode una vista mozzafiato sul paesaggio circostante, un vero angolo di quiete e bellezza. Il piano prosegue con una comoda lavanderia, una spaziosa camera matrimoniale con accesso diretto al giardino e un bagno completo, curato nei dettagli.

Il piano superiore ospita la zona notte più riservata, con due ulteriori camere luminose e un bagno, ambienti intimi e armoniosi, ideali per la vita familiare.

A completare la proprietà, due posti auto, a servizio di una villa che si distingue per l’eccellente stato interno, la qualità delle finiture e la possibilità di essere facilmente divisibile, adattandosi a diverse esigenze abitative.

Una casa che non è solo uno spazio da vivere, ma un luogo da sentire, dove ogni piano dialoga con l’altro in un equilibrio perfetto tra eleganza e funzionalità.

SE VOLETE CAMBIARE IL MONDO POSSIAMO PROVARCI INSIEME, SE VOLETE CAMBIARE CASA CI PENSIAMO NOI…BENVENUTA CASA!!!

Mostra tutto

Nelle vicinanze

Trasporto pubblico Trasporto pubblico
Via Manzoni/Tor Lupara
Via Manzoni/Tor Lupara
2,4 Km
Nomentana/Monte Gennaro
Nomentana/Monte Gennaro
2,4 Km
Ricariche auto elettriche Ricariche auto elettriche
Fontenuova Via Lago di Como | EnelX
740 m
Colleverde | EnelX
2,6 Km
Fonte Nuova Parcheggio COOP | EnelX
2,8 Km
Scuole Scuole
Istituto comprensivo statale Luigi Pirandello
200 m
Scuole
1,8 Km
Farmacia Farmacia
Farmacia Vita Nuova
720 m
Farmacia
950 m
Farmacia Vitillo
3,0 Km
Supermercati Supermercati
Emme Più
1,3 Km
Conad
2,2 Km
Centro commerciale La Fonte
2,3 Km
Elite
2,5 Km
Todis
2,7 Km
Negozi Negozi
IperCarni
1,6 Km
Acqua e sapone
1,6 Km
EuroSpin
1,6 Km
Bar Bar
Bar
2,6 Km
Il Ciao
2,8 Km
Ristoranti Ristoranti
Dar Braciola
2,4 Km
Il Portico
2,7 Km
Komugi
2,8 Km
Ristorante Pizzeria Tony
2,9 Km
Mediterraneo
2,9 Km
Mostra tutto

Caratteristiche

Rif.:
61164152
Piano:
Su più livelli di 3
Totale piani:
3
Posti auto:
2
Balconi:
1
Terrazzi:
1
Mostra tutto
Prezzo Prezzo
€ 319.000
Rata mutuo Rata mutuo
€ 1.504 / mese
Spese annue Spese annue
€ 0
Proponi il tuo prezzoProponi il tuo prezzo

Classe Energetica

F
F
F
F
F
F
F
F
F
EP invernale del fabbricato:
EP estiva del fabbricato:
Anno di costruzione:
2012
Riscaldamento:
Autonomo
Tipo impianto:
A radiatori
Tipo alimentazione:
Metano

Ti interessa visionare l'immobile?

Fissa un appuntamento  Fissa un appuntamento

Richiedi informazioni

Clicca su Leggi per aprire l'informativa
* Questi campi sono obbligatori

Calcola il tuo mutuo

Semplice e senza impegno
Anticipo

( % )
Mutuo

( % )

pochi semplici passi

inserisci i tuoi dati
Questionario completato
Grazie per aver richiesto un appuntamento senza impegno con un nostro Consulente del Credito e Assicurativo.

Hai inserito correttamente tutti i dati necessari e a breve riceverai una e-mail con un link da convalidare per inviare i tuoi dati.
Affiliato
Immobiliare Santa Lucia Srl
Via Palombarese, 268 00013 Fonte Nuova (RM)

Il nostro staff


  • Anthony Garofalo
    Responsabile

  • Manolo Mastrandrea
    Affiliato

  • Micaela Pierantozzi
    Coordinatrice
Via Palombarese, 268 00013 Fonte Nuova (RM)
Zona: Santa Lucia-Pichini-Ponte Delle Tavole
Mostra su mappa
Orari: Dal Lunedì al Venerdì, 08.30 - 13.00, 15.30 - 20.00 / Sabato 08.30 - 13.00, 15.30 - 19.00
Affiliato
Immobiliare Santa Lucia Srl
Via Palombarese, 268 00013 Fonte Nuova (RM)

2026 Tecnocasa Franchising S.p.A. - P. IVA 08365160152 - Via Monte Bianco 60/A 20089 Rozzano (MI). Ogni agenzia ha un proprio titolare ed è autonoma. Privacy policy | Policy utilizzo | Cookie policy