Box / posti auto in vendita

Fonte Nuova, Via lago di bolsena - Santa Lucia
€ 85.000
Prezzo aggiornato
1 locale 1 locale
209 Mq 209 Mq

Box / posti auto in vendita

Fonte Nuova, Via lago di bolsena - Santa Lucia

Descrizione annuncio

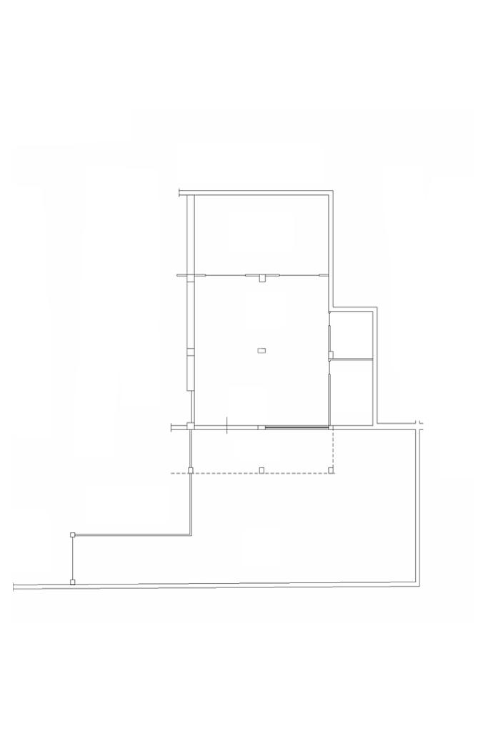
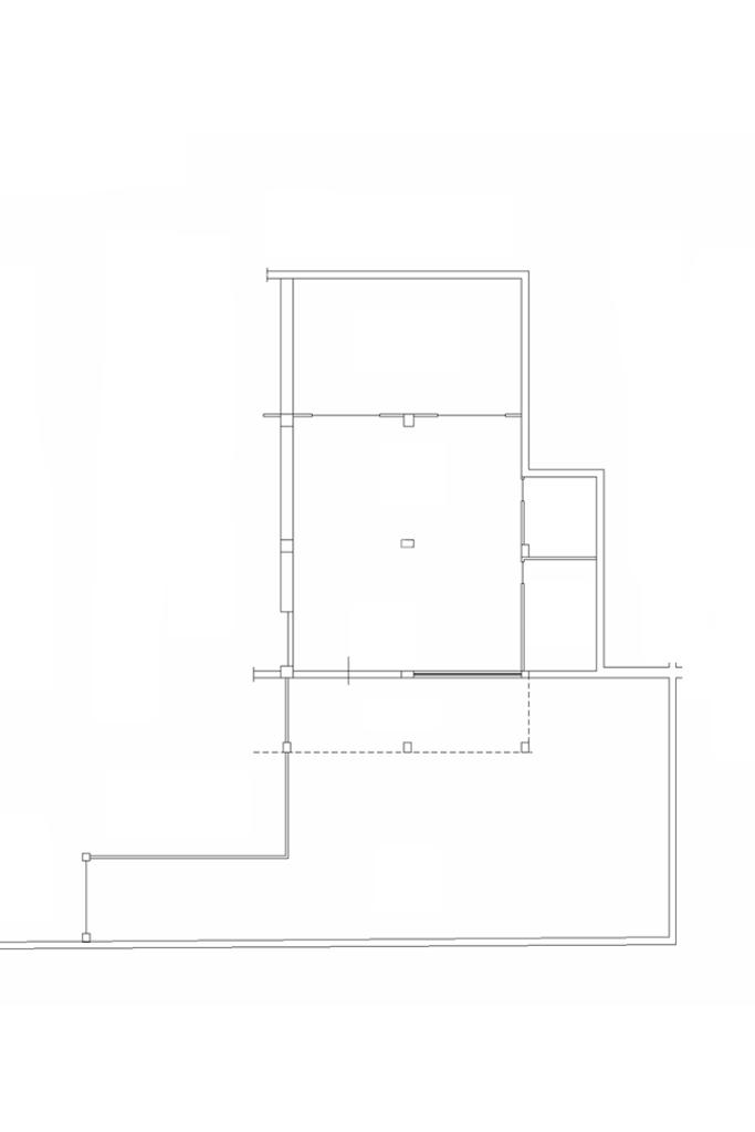
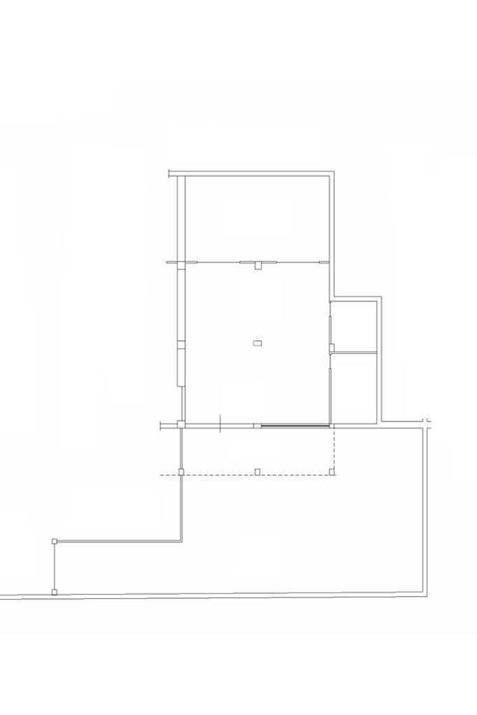
Opportunità di investimento: laboratorio di 200 mq commerciali con ampio piazzale di proprietà.

Proponiamo in vendita un laboratorio di circa 200 mq commerciali, una soluzione ideale per chi desidera un investimento solido e con ottime prospettive di crescita. L’immobile si trova in una posizione strategica, a pochi passi dai principali servizi e comodamente collegato alle vie di comunicazione, elemento che ne aumenta significativamente l’attrattività sia per attività produttive che per realtà artigianali o professionali.

La struttura, luminosa e facilmente personalizzabile, offre spazi ampi e versatili, in grado di adattarsi alle esigenze delle più diverse attività. L’ampio piazzale esterno rappresenta un valore aggiunto raro e altamente funzionale: perfetto per manovre, parcheggio o operazioni di carico e scarico, rende il laboratorio particolarmente competitivo rispetto ad altre soluzioni presenti sul mercato.

Oltre alla comodità degli accessi e alla vicinanza a servizi e infrastrutture, l’immobile si distingue per il suo interessante potenziale di rivalutazione nel tempo. La crescente domanda di spazi produttivi ben posizionati e la possibilità di personalizzare gli ambienti rendono questa proprietà una scelta ideale per investitori o imprese in espansione alla ricerca di uno spazio strategico, efficiente e dal sicuro valore futuro.

Un’opportunità rara per chi desidera investire in un immobile versatile, funzionale e con prospettive di rendimento concrete.

SE VOLETE CAMBIARE IL MONDO POSSIAMO PROVARCI INSIEME, SE VOLETE CAMBIARE CASA CI PENSIAMO CASA!

Mostra tutto

Nelle vicinanze

Trasporto pubblico Trasporto pubblico
Nomentana/Monte Bianco
Nomentana/Monte Bianco
2,5 Km
Via Manzoni/Tor Lupara
Via Manzoni/Tor Lupara
2,7 Km
Ricariche auto elettriche Ricariche auto elettriche
Fontenuova Via Lago di Como | EnelX
1,5 Km
Colleverde | EnelX
2,1 Km
Fonte Nuova Parcheggio COOP | EnelX
2,8 Km
Scuole Scuole
Istituto comprensivo statale Luigi Pirandello
740 m
Scuole
1,3 Km
Farmacia Farmacia
Farmacia Vita Nuova
500 m
Farmacia
1,8 Km
Farmacia Vitillo
2,3 Km
Supermercati Supermercati
Emme Più
460 m
Supermercati
2,2 Km
Elite
2,7 Km
Carrefour
2,9 Km
Negozi Negozi
IperCarni
2,4 Km
Acqua e sapone
2,4 Km
EuroSpin
2,5 Km
Bar Bar
Caraibe
2,5 Km
Il Ciao
2,7 Km
Bar
2,8 Km
Ristoranti Ristoranti
Komugi
2,6 Km
Dar Braciola
2,7 Km
Il Portico
2,9 Km
Mostra tutto

Caratteristiche

Rif.:
61146354
Piano:
Terra di 2
Totale piani:
2
Arredamento:
Assente
Condizionamento:
Assente
Ascensore:
No
Mostra tutto
Prezzo Prezzo
€ 85.000
Rata mutuo Rata mutuo
€ 401 / mese
Spese annue Spese annue
€ 0
Proponi il tuo prezzoProponi il tuo prezzo

Altre caratteristiche

Classe Energetica

Questo immobile è esente da classe energetica
Anno di costruzione:
1996
Riscaldamento:
Assente

Prezzo ridotto di €1 (11%%)

Ti interessa visionare l'immobile?

Fissa un appuntamento  Fissa un appuntamento

Richiedi informazioni

Clicca su Leggi per aprire l'informativa
* Questi campi sono obbligatori

Calcola il tuo mutuo

Semplice e senza impegno
Anticipo

( % )
Mutuo

( % )

pochi semplici passi

inserisci i tuoi dati
Questionario completato
Grazie per aver richiesto un appuntamento senza impegno con un nostro Consulente del Credito e Assicurativo.

Hai inserito correttamente tutti i dati necessari e a breve riceverai una e-mail con un link da convalidare per inviare i tuoi dati.
Affiliato
Immobiliare Santa Lucia Srl
Via Palombarese, 268 00013 Fonte Nuova (RM)

Il nostro staff


  • Anthony Garofalo
    Responsabile

  • Manolo Mastrandrea
    Affiliato

  • Micaela Pierantozzi
    Coordinatrice
Via Palombarese, 268 00013 Fonte Nuova (RM)
Zona: Santa Lucia-Pichini-Ponte Delle Tavole
Mostra su mappa
Orari: Dal Lunedì al Venerdì, 08.30 - 13.00, 15.30 - 20.00 / Sabato 08.30 - 13.00, 15.30 - 19.00
Affiliato
Immobiliare Santa Lucia Srl
Via Palombarese, 268 00013 Fonte Nuova (RM)

2026 Tecnocasa Franchising S.p.A. - P. IVA 08365160152 - Via Monte Bianco 60/A 20089 Rozzano (MI). Ogni agenzia ha un proprio titolare ed è autonoma. Privacy policy | Policy utilizzo | Cookie policy